一、回液:
1、對於使用膨脹閥的製冷係統,回液與膨脹閥選型和使用不當密切相關。膨脹閥選型過大、過熱度設定太小、感溫包安裝方法不正確或絕熱包紮破損、膨脹閥失靈都可能造成回液。
2、對於使用毛細管的小製冷係統而言,加液量過大會引起回液。蒸發器結霜嚴重或風扇故障時傳熱變差,未蒸發的液體會引起回液。溫度頻繁波動也會引起膨脹閥反應失靈而引起回液。
對於回液較難避免的製冷係統,安裝氣液分離器控製可以有效阻止或降低回液的危害。
二、帶液啟動:
1、壓縮機內的潤滑油劇烈起泡的現象叫帶液啟動。帶液啟動時的起泡現象可以在油視鏡上清楚地觀察到。根本原因是潤滑油中溶解的以及沉在潤滑油下麵了大量的製冷劑,在壓力突然降低時突然沸騰,並引起潤滑油的起泡現象,很容易引起液擊。
2、壓縮機安裝曲軸箱加熱器(電熱器)可以有效防止製冷劑遷移。短時間停機,維持曲軸箱加熱器通電。長時間停機不用後,開機前先加熱潤滑油幾個或十幾個小時。回氣管路上安裝氣液分離器,可以增加製冷劑遷移的阻力,降低遷移量。
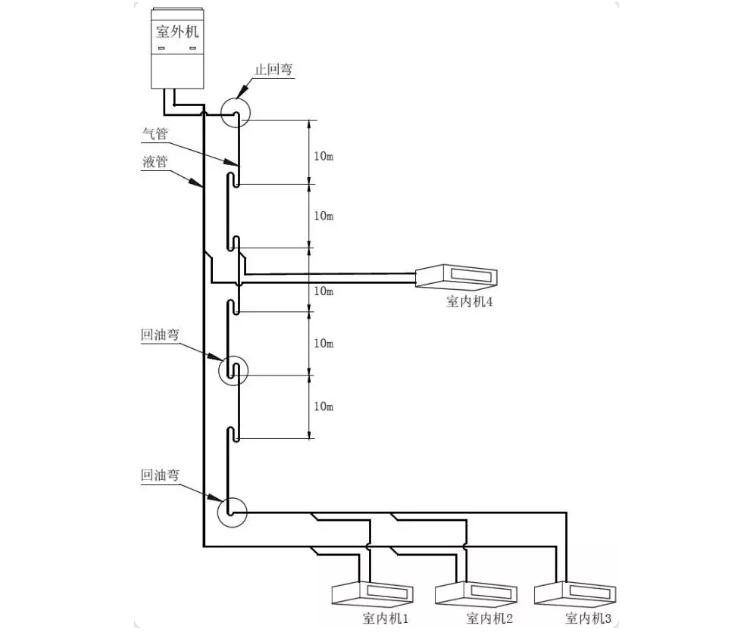
三、回油:
1、當壓縮機比蒸發器的位置高時,垂直回氣管上的回油彎是必需的。回油彎要盡可能緊湊,以減小存油。回油彎之間的間距要合適,回油彎的數量比較多時,應該補充一些潤滑油。
2、壓縮機頻繁啟動不利於回油。由於連續運轉時間很短壓縮機就停了,回氣管內來不及形成穩定的高速氣流,潤滑油就隻能留在管路內。回油少於奔油,壓縮機就會缺油。運轉時間越短,管線越長,係統越複雜,回油問題就越突出。
3、缺油會引起嚴重的潤滑不足,缺油的根本原因不在於壓縮機奔油多少和快慢,而是係統回油不好。安裝油分離器可以快速回油,延長壓縮機無回油運轉時間。
四、蒸發溫度:
發溫度對製冷效率影響較大,它每降低1度,製取同樣的冷量需增加功率4%。所以在條件許可的情況下,適當提高蒸發溫度,對提高空調器製冷效率是有利的。
家用空調器的蒸發溫度一般比空調出風口溫度低5~10度,正常運行時,蒸發溫度在5~12度,出風溫度在10~20度。
一味的降低蒸發溫度雖然可以製冷溫差,但壓縮機的製冷量卻減小了,因此製冷速度不一定快。何況蒸發溫度越低,製冷係數就越低,而負荷卻有增加,運轉時間延長,耗電量會增大。
五、排氣溫度過高
排氣溫度過高的原因主要有以下幾種:回氣溫度高、電機加熱量大、壓縮比高、冷凝壓力高、製冷劑的絕熱指數、製冷劑選擇不當。
六、液擊
1、為了保證壓縮機的安全運轉,防止產生液擊現象,要求吸氣溫度比蒸發溫度高一點,即應具有一定的過熱度。
2、應避免吸氣溫度過高或過低。吸氣溫度過高,即過熱度過大,將導致壓縮機排氣溫度升高。吸氣溫度過低,則說明製冷劑在蒸發器中蒸發不完全,既降低了蒸發器換熱效率,濕蒸汽的吸人又會形成壓縮機液擊。吸氣溫度正常情況下應比蒸發溫度高5~10℃。
七、加氟
1、氟量少或其調節壓力低(或部分堵塞)時,膨脹閥的閥蓋(波紋管)、甚至連進液口都會結霜;氟量過少或基本無氟時,膨脹閥的外表無反應,隻能聽到一點氣流的絲絲聲。
2、看結冰從哪一端開始的,是從分液頭還是從壓機回氣管,如果從分液頭就是缺氟,從壓機就是氟多了。
八、吸氣溫度低:
1、製冷劑充注量太多,占據了冷凝器內部分容積而使冷凝壓力增高,進入蒸發器的液體隨之增多。蒸發器中液體不能完全氣化,使壓縮機吸人的氣體中帶有液體微滴。這樣,回氣管道的溫度下降,但蒸發溫度因壓力未下降而未變化,過熱度減小。即使關小膨脹閥也無顯著改善。
2、膨脹閥開啟度過大。由於感溫元件綁紮過鬆、與回氣管接觸麵積小,或者感溫元件未用絕熱材料包紮及其包紮位置錯誤等,致使感溫元件所測溫度不準確,接近環境溫度,使膨脹閥動作的開啟度增大,導致供液量過多。
九、吸氣溫度高:
1、係統中製冷劑充注量不足,或膨脹閥開啟度過小,造成係統製冷劑的循環量不足,進人蒸發器的製冷劑量少,過熱度大,從而吸氣溫度高。
2、膨脹閥口濾網堵塞,蒸發器內的供液量不足,製冷劑液體量減少,蒸發器內有一部分被過熱蒸汽所占據,因此吸氣溫度升高。
3、其他原因引起吸氣溫度過高,如回氣管道隔熱不好或管道過長,都可引起吸氣溫度過高。正常情況下壓縮機缸蓋應是半邊涼、半邊熱。
十、排氣溫度過低
排氣壓力過低,雖然其現象是表現在高壓端,但原因多產生於低壓端。原因有:
1、膨脹閥冰堵或髒堵,以及過濾器堵塞等,必然使吸、排氣壓力都下降;製冷劑充注量不足;
2、膨脹閥孔堵塞,供液量減少甚至停止,此時吸、排氣壓力均降低。

22年專注地(風)源熱泵精細化施工





掃一掃進入手機網站!