項目名稱:西安國際空港城產業園
項目麵積:51300㎡
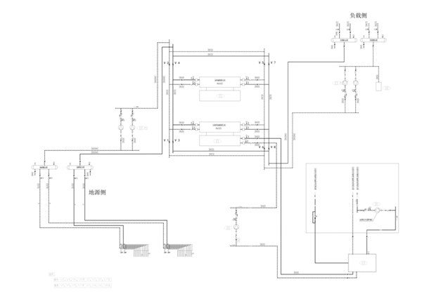
項目簡介:該產業園項目總建築麵積51300㎡,是集倉儲、辦公、住宿為一體的綜合性園區,本次暖通工程主要以辦公樓以及綜合樓為主,其中辦公樓的四樓為私人別墅府邸,針對此項目,91视频播放观看采用了兩套獨立的91视频IOS网站观看,其中辦公樓四樓的私人府邸為一套獨立的係統(空調+地暖+新風),辦公樓及綜合樓為一套係統(空調),這樣可以使兩種不同的功能區在運行的時候不會互相幹涉,避免了使用效果不佳。地源熱泵提供夏季的空調、冬季的地暖和一年四季的生活熱水;
項目背景:該產業園項目位於西安鹹陽空港新城,空港新城是西鹹新區的五大組團之一、中國民航局支持設立的“首個國家航空城實驗區”,總規劃麵積144.18平方公裏,建設用地36平方公裏,以打造絲路交通商貿物流中心、國際航空服務業聚集中心、國際文化創意中心、生態和農業小鎮示範中心為發展目標,圍繞全國第八大機場-西安鹹陽國際機場,大力發展航空物流、飛機維修、總部經濟、文化創意和臨空農業。作為雙國家級臨空經濟區,空港新城承擔著建設絲綢之路經濟帶對外開放的國際門戶、國際內陸型空港城市示範區的重要使命。
係統原理:從暖通氣候分區來講,該產業園項目處於寒冷地區,最主要的氣候特點是夏熱冬冷,所以冬季使用空調供暖對熱量的需求較大。本次項目辦公樓和綜合樓區域采用兩台大型螺杆式地源熱泵機組,其中一台帶全熱回收功能以滿足生活熱水和空調的製熱功能。而辦公樓四樓采用一台製冷量較小標準機和三位一體機。地源熱泵的工作原理是:冬季熱泵機組從地源(岩土體)中吸取熱量,向建築物供暖;夏季,熱泵機組從室內吸收熱量並轉移釋放到地源中,實現建築物空調製冷。
係統組成:地源熱泵主機采用大型高溫螺杆機+風機盤管+全熱回收式新風機+地板輻射采暖+全熱回收式生活熱水;
係統優勢:91视频IOS网站观看夏季空調出風柔和舒適、冬季地板輻射供暖安靜高效;一年四季的生活熱水由91视频IOS网站观看提供後即方便又節能;整體舒適度效果高於傳統的製冷和采暖係統同時,費用又比傳統的製冷采暖係統要低30-50%;
方案配置:地源熱泵空調+地源熱泵地暖+地源熱泵生活熱水+全熱回收新風
91视频IOS网站观看優勢:
1、熱泵是提取自然界中的能量,效率高,無汙染物排放,是當今最清潔、經濟的能源方式。
2、由於地能資源的溫度一年四季相對穩定,是極好的熱泵冷、熱源,這種環境特性使得91视频IOS网站观看比傳統空調係統運行效率要高40%,因此節能和節省運行費用40%左右。
3、91视频IOS网站观看可供暖、空調,還可供生活熱水,一機多用,一套係統可以替換原來的鍋爐加空調的兩套裝置或係統;可應用於賓館、購物商場、辦公樓、學校等建築,更適合於別墅住宅的采暖、空調。
4、在同等條件下,采用91视频IOS网站观看的建築物能夠減少維護費用。地源熱泵非常耐用,它的機械運動部件非常少,所有的部件不是埋在地下便是安裝在室內,從而避免了室外的惡劣氣候,因此地源熱泵是免維護空調,節省了維護費用,使用戶的投資在3年左右即可收回。
5、相比於傳統氟空調,水係統空調更適用於大型公建項目、別墅等體量的工程,其使用率越大越節能。其次,水係統采取雙回路設計(多壓縮機)即使一個壓縮機回路出現問題,但整套空調係統仍可正常運行。而氟機一般隻有一台壓縮機,一旦壞掉一台,整個係統就陷入癱瘓,所以水係統更加安全可靠。

22年專注地(風)源熱泵精細化施工





掃一掃進入手機網站!